bluEvolution 82

Najnowsza generacja ciepłych okien bluEvolution: 82. to optymalne połączenie innowacyjnej technologii oraz najlepszych parametrów ochrony cieplnej właściwych dla budownictwa pasywnego.

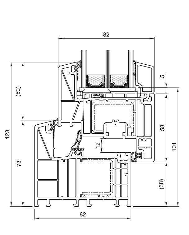
Specjalny system 6-cio komorowych profili PCW o szerokości 82 mm w połączeniu z podwójnym lub potrójnym zestawem elastycznych uszczelek oraz stosowanym standardowo 2-komorowym pakietem "ciepłych" szyb, pozwalają na konstruowanie okien, charakteryzujących się jednym z najlepszych parametrów izolacyjności termicznej wśród wyrobów dostępnych na rynku stolarki otworowej. Dlatego okna w systemie bluEvolution: 82 zapewniają najwyższy z możliwych poziom efektywności energetycznej a tym samym największe oszczędności w wydatkach na ogrzewanie w stosunku do kosztu ich zakupu.

Charakterystyka:

Profile: 6-komorowe profile ram i skrzydeł wykonane z najwyższej jakości PCW:

  • energooszczędne
  • ekologiczne
  • odporne na szkodliwe wpływy atmosfery
  • łatwe w pielęgnacji i utrzymaniu czystości.

Szyby: Dwukomorowe pakiety ciepłych szyb o najlepszym na rynku współczynniku izolacyjności termicznej Ug = 0,5 W/m²K dla szyb wypełnionych argonem. Możliwość stosowania dowolnych pakietów szyb (termicznych, akustycznych i antywłamaniowych) o szerokości do 52 mm.

Osadzenie szyb: Głębokie osadzenie szyb dodatkowo poprawia izolację cieplną okna.

Uszczelki: Do wyboru dwa systemy uszczelnień AD z dwiema uszczelkami oporowymi lub MD z dodatkową uszczelką środkową.

Duże komory zewnętrzne: Skutecznie poprawiają wentylację i chłodzenie profili (mniejsze naprężenie termiczne) oraz ułatwiają odprowadzanie wody.

Wzmocnienia: Specjalny system ocynkowanych, dużych wzmocnień stalowych.

Tworzywo PCW: odporne na szkodliwe wpływy atmosfery i zabrudzenia, gładka powierzchnia profili ułatwia utrzymanie ich w czystości.

Kolory: szeroka paleta kolorów profili, zarówno gładkich, jak i drewnopodobnych, w tym drewna szlachetnego.

Zakresy zastosowania: Okna z PCW w kolorze białym oraz w szerokiej palecie kolorów gładkich oraz drewnopodobnych bez ograniczeń formalnych i funkcjonalnych.

Dane techniczne:

  • Uf =1,0 W/m2K
  • Ug =0,5 W/m2K (z termo ramką, pakiet szybowy 48 mm)
  • Uw =0,76 W/m2K (dla okna referencyjnego 1230 mm x 1480 mm)

Przejdź do góry

Stosujemy pliki cookies.

Więcej szczegółów